Inhalt anspringen

Salzgitter

Außenbecken für das Stadtbad

Über den Bau eines Ganzjahresaußenbeckens am Stadtbad Salzgitter-Lebenstedt entscheidet der Rat der Stadt Salzgitter am 1. Dezember.

Am neu renovierten Hallenbad Salzgitter-Lebenstedt wurden 2016 die angrenzenden maroden Freibadbecken mit großen Liegewiesen geschlossen und seither nicht mehr betrieben. Speziell für Familien, Kinder, Jugendliche sowie Freizeit- und Sportschwimmer ist dadurch ein großes, attraktives Wasserangebot im Freien entfallen. 

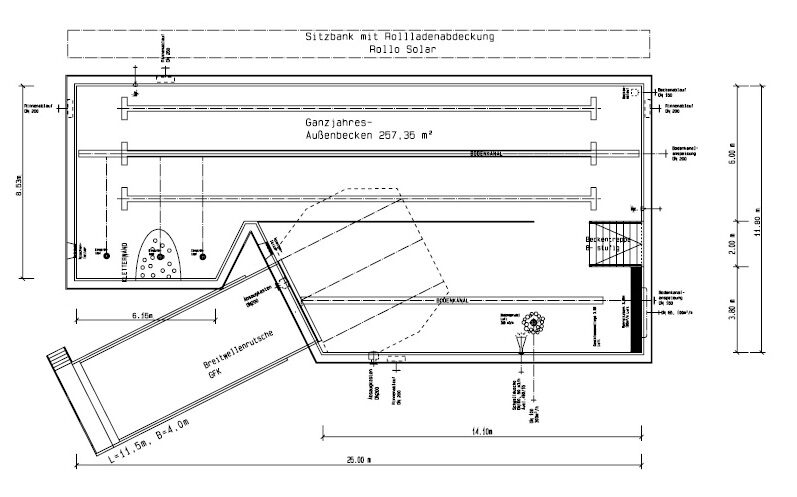
Das neue Projekt eines 25m-Ganzjahresaußenbeckens mit Rutschenanlage soll diese fehlende Wasserfläche kompensieren und das Schwimmsportangebot für öffentliche Gäste, aber auch für Schulen und Vereine erhalten.

Das neue Ganzjahresaußenbecken deckt auf 4 Bahnen mit einer Länge von 25 m und einer Tiefe von 1,35 m die Nutzung ab. Dabei kann auf die Infrastruktur des neuen Hallenbades zurück gegriffen werden, wie Umkleide- und Duschmöglichkeiten sowie Gastronomie und Liegeflächen.

Bürgerinformationssystem:

Lesen Sie auch hier:

Erläuterungen und Hinweise

Bildnachweise

  • BSF / Andre Kugellis
  • BSF / Planungsbüro